"Hayata bizim penceremizden bakın..."

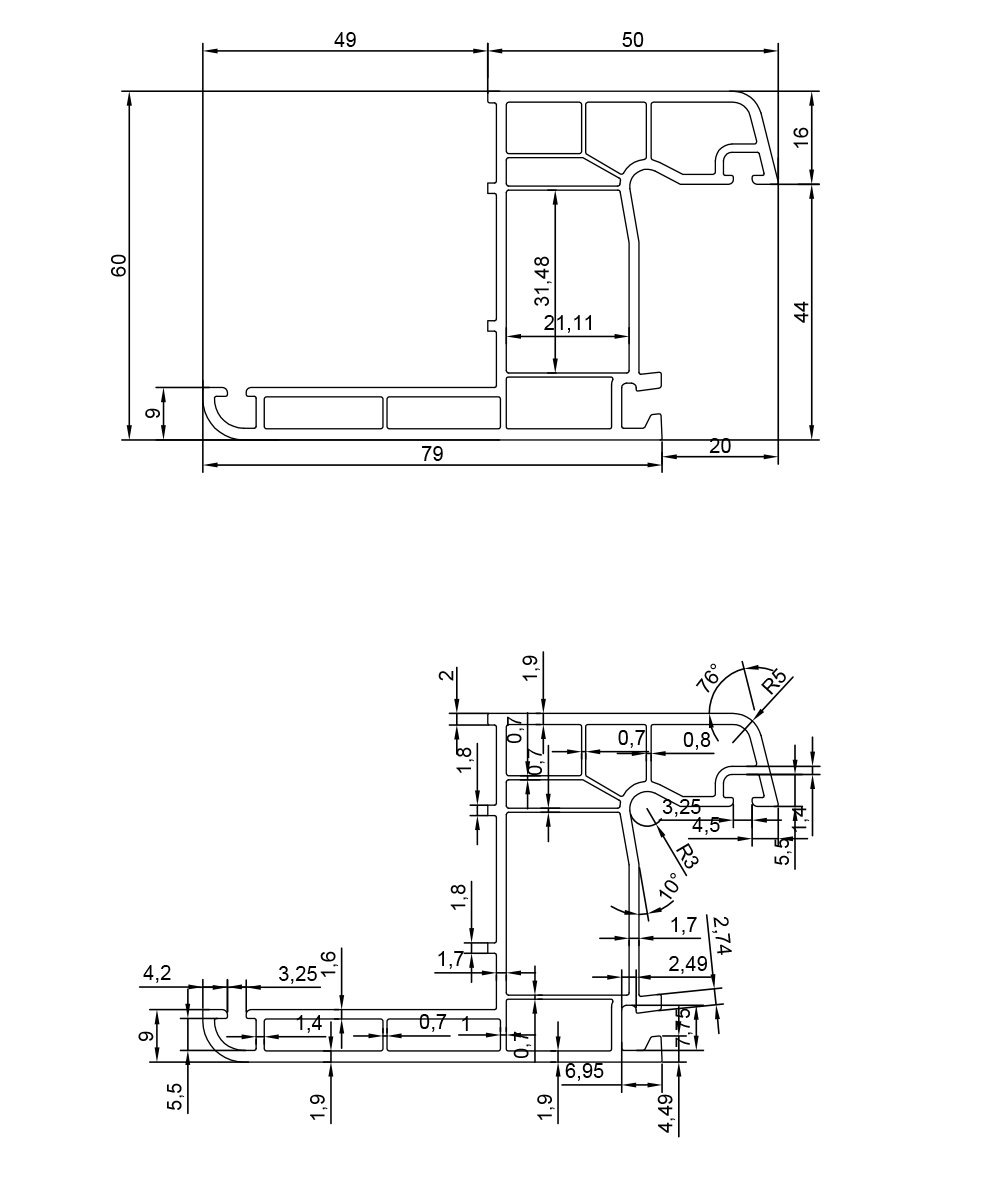
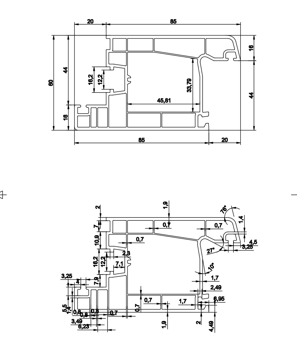
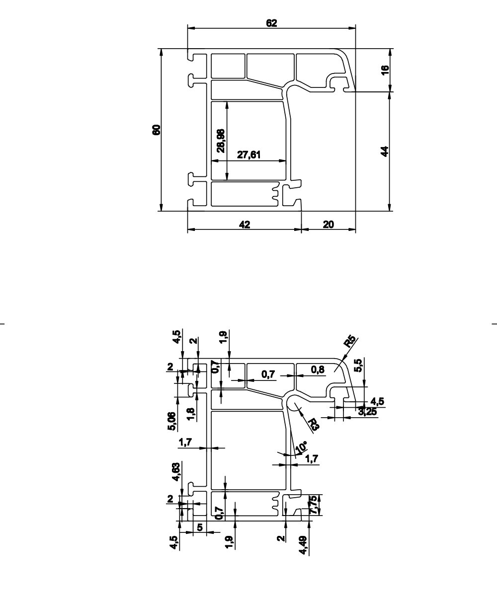
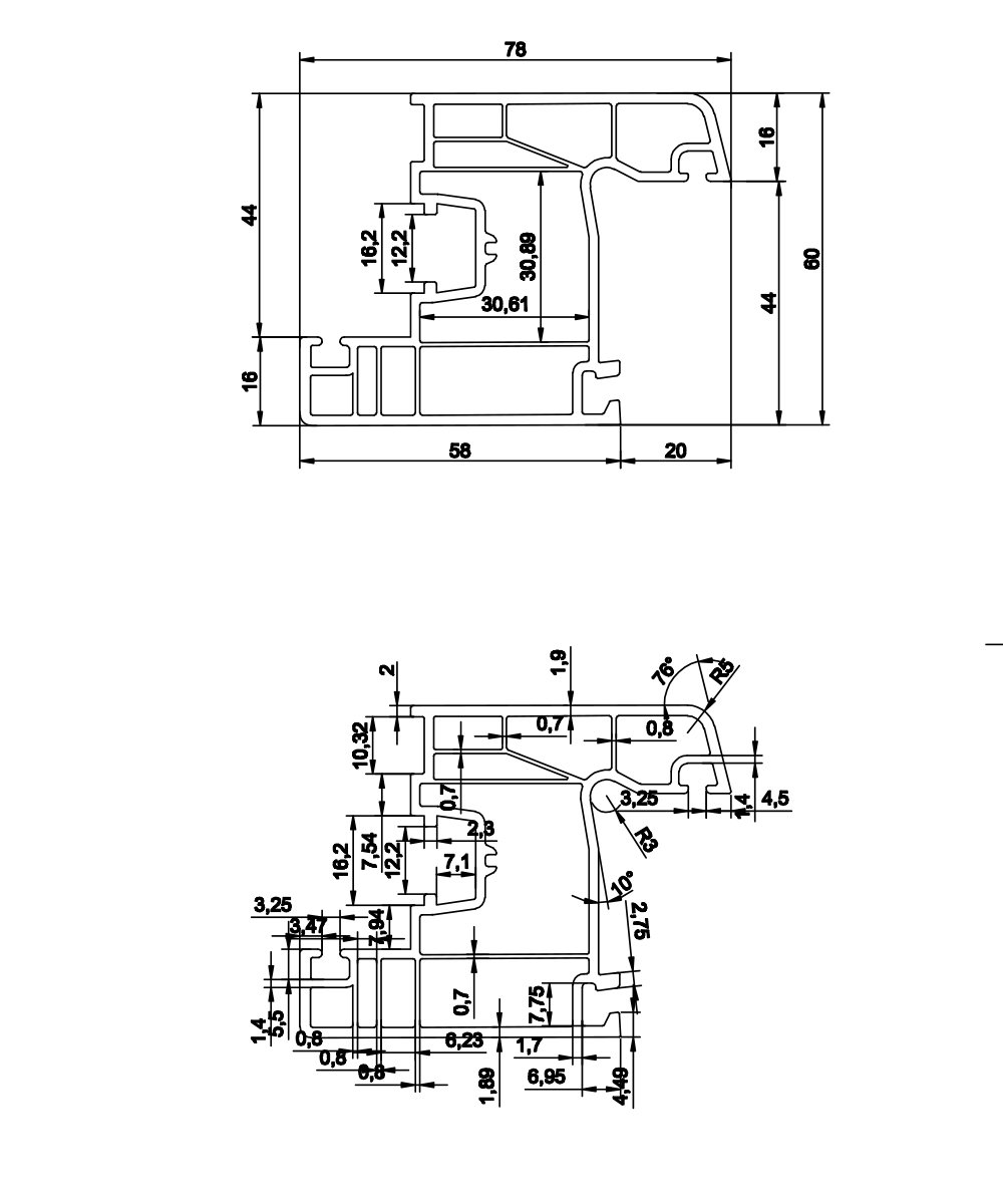
60 Seri

60 Seri

Ürün Özellikleri
  • • Profil genişliği 60 mm.
  • • Odacık sayısı 4.
  • • Conta sistemi İç-Dış , 2'li conta sistemi.
  • • Conta tipi/rengi TPE - Gri / Siyah.
  • • Cam kalınlıkları(mm) 4, 20, 24, 28, 32, 40, 42mm.
  • • Doğrudan duvara uygulama imkanı Kasa kanat ve Orta kayıtta tek tip destek sacı.
  • • Dışa doğru 30°’lik eğimi ve su toplama haznesi sayesinde su, nem rahatlıkla dışarı atılır.